别墅大宅
在建工地
点击报价
手机装修网
官方微信
官方微信
案例
热装小区
设计师
文章
搜索
家装案例  
▼
产品套系
全部
拎包装
面积范围
全部
100㎡以下
100-140㎡
140-200㎡
200-300㎡
房屋户型
全部
普通住宅
跃层
公寓
别墅
其他
装修风格
全部
现代简约
田园风格
欧式风格
中式风格
地中海风格
混搭风格
北欧风格
美式风格
日式风格
首页
整装产品
别墅大宅
老房拆改
设计师
全景图
家装案例
在建工地
实景竣工工地
热装小区
品质工艺
环保工艺
工程工艺
装修百科
设计知识
家装风水
装修选材
家装攻略
关于我们
当前位置:
首页
>
热装小区
财富立方小区
小区简介
财富立方小区
小区地址
汉台前进路电视塔旁
签约户数
已签约
42
户
装修优惠
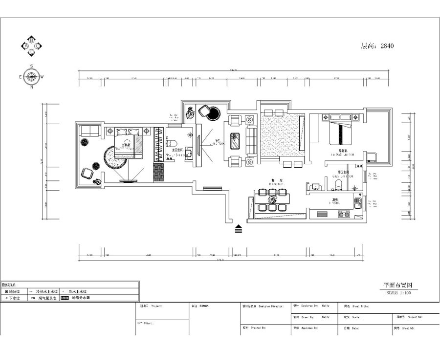
小区案例
查看更多
在建工地
查看更多
家装案例推荐
查看更多
·
龙湾半岛复式-简约
查看详情
·
阅府-150-轻奢
查看详情
·
山河原著 现代简约-206
查看详情
·
龙湾半岛400现代简约
查看详情
上一篇
下一篇
已有
312
人
使用免费报价
官方微信
30秒免费报价
——
DECORATE A BUDGET
您的称呼
手机号码
装修城市
汉中市
▼
汉中市
西安市
宝鸡市
房屋户型
1室
▼
1室
2室
3室
4室
5室
1厅
▼
1厅
2厅
3厅
1卫
▼
1卫
2卫
3卫
套内面积
产品套系
轻奢装
▼
拎包装
智能报价
╳